Merelweg 7
Paterswolde
€ 367.500,- k.k.
Beschikbaar
Energieklasse C
- StatusBeschikbaar
- Koopprijs€ 367.500,- k.k.
- AdresMerelweg 7
- EnergieklasseC
- PlaatsPaterswolde
- Postcode9765 JT
- Perceel oppervlakte185 m2
- Woonoppervlakte115 m2
- Aantal kamers6
- Aantal slaapkamers5
- Bouwjaar1965
Ruime tussenwoning gelegen op een rustige locatie met een ruim speelveld recht voor de deur. Deze lichte tussenwoning is gelegen aan de Merelweg en beschikt over een achterom met vrijstaande garage en berging. Aan de voorzijde dus vrij zicht over een speelveld en aan de achterzijde de garage en berging.
De woning biedt een uitstekende basis met volop mogelijkheden om deze geheel naar eigen wens te moderniseren. Zo is de badkamer recent vernieuwd, terwijl de keuken nog naar eigen smaak kan worden ingericht. Hier ligt een mooie kans om jouw droomkeuken te realiseren.
Op de verdieping bevinden zich 4 slaapkamers en op de 2e verdieping nog een extra zolderkamer
Indeling:
Begane grond:
Hal/entree, toilet met fonteintje, woonkamer ± 31 m2 voorzien van open haard en schuifpui naar de zonnige achtertuin welke op het westen ligt. Vanuit de woonkamer kom je in de half open keuken met eenvoudig keukenblok.
1e verdieping:
Overloop, 4 slaapkamers resp. 7m2 9m2, 5m2 en 12 m2 met balkon en een moderne badkamer voorzien van douche, toilet en wastafel.
2e verdieping:
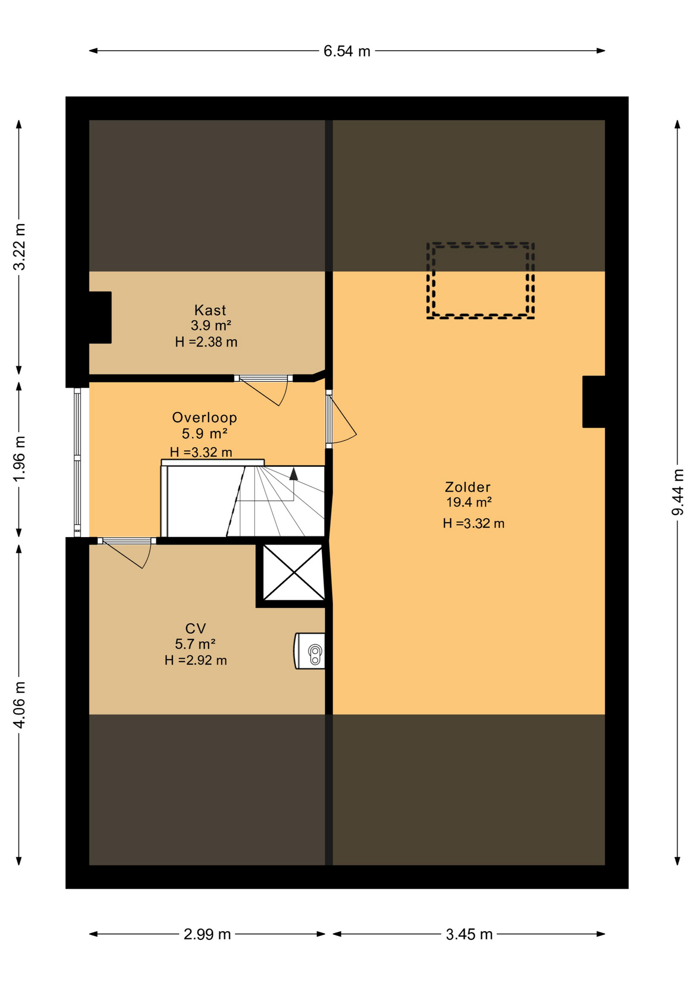
Middels een vaste trap bereikt men de overloop/berging waar de 5e slaapkamer zich bevindt.
Bijzonderheden:
Aan de voorzijde gelegen aan een speelveld.
Alleen bestemmingsverkeer dus rustig gelegen.
Woonoppervlak: 115 m2
Bouwjaar: 1965
Garage achter de woning en eenvoudig bereikbaar en met aangebouwde berging.
Moderne nieuwe badkamer
Geen IMG en SNN geclaimd
Gelegen in een groene woonomgeving nabij het dorpscentrum en op circa 10 autominuten van Groningen. Bovendien liggen het Paterswoldse Meer, diverse landgoederen en natuurgebied De Onlanden in de directe omgeving, perfect voor liefhebbers van wandelen en fietsen.


